Gieterijstraat 13
7411 EA Deventer
435.000 k.k.
Omschrijving
Welkom in dit charmante gezinshuis in Deventer. Deze sfeervolle woning, gelegen in de rustige Gieterijstraat, heeft alles wat je nodig hebt en meer. Het is een fijn huis waar je je snel thuis zult voelen. Het betreft een eengezinswoning met een woonoppervlak van 93 m2, een moderne uitstraling en een energielabel A, wat het een duurzame keuze maakt.
Locatie & Omgeving
Deze woning bevindt zich in de historische stad Deventer, in een rustige straat met weinig verkeer. Omringd door voorzieningen zoals supermarkten, gezellige winkels, scholen en sportscholen gaat wonen hier gepaard met gemak en comfort. Daarnaast bevindt het huis zich vlakbij uitvalswegen, ideaal voor forenzen. Voor natuurliefhebbers zijn er prachtige wandelmogelijkheden langs de IJssel en in de uiterwaarden, waar je heerlijk kunt ontspannen.
Algemene kenmerken van de woning
Deze gezellige eengezinswoning, gebouwd in 1999, heeft 4 slaapkamers en 5 kamers in totaal. De woning is goed onderhouden, zowel van binnen als van buiten. De hoofdverwarming is een HR ketel op gas en er is ook waterverwarming beschikbaar via zonnecollectoren. De woning is volledig geïsoleerd, met dak-, muur- en vloerisolatie en dubbel glas, wat bijdraagt aan de efficiëntie van de verwarming en het comfort in huis.
Begane grond
De begane grond van de woning is een uitnodigende ruimte met een knusse woonkamer van 21 m2 die baadt in natuurlijk licht. De keuken van 10 m2 is modern en functioneel, ideaal voor het bereiden van heerlijke maaltijden.
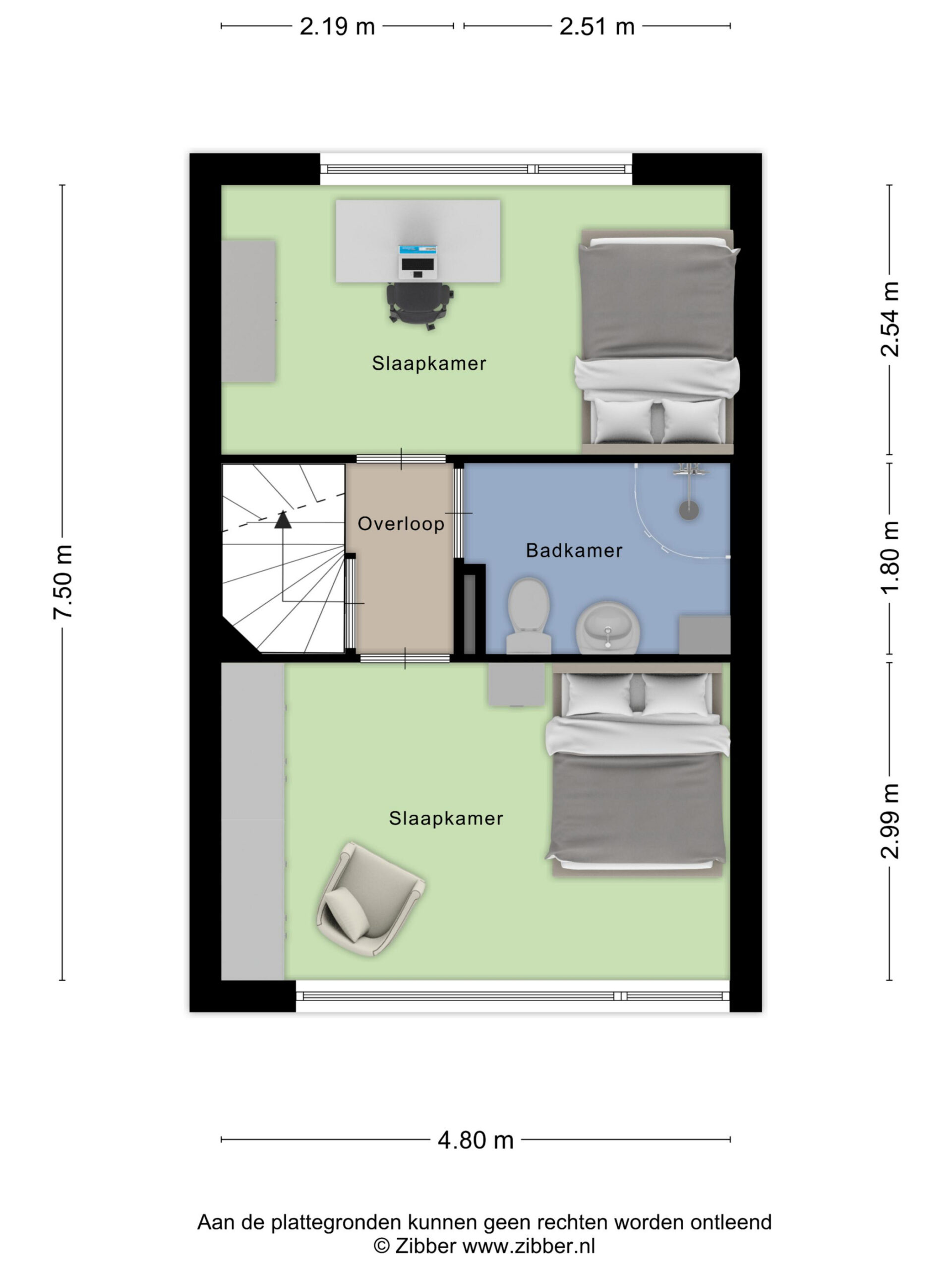
Verdiepingen & indeling
Op de eerste verdieping bevinden zich twee comfortabele slaapkamers en een badkamer van 5 m2 met toilet, douche, en wastafel. De tweede verdieping biedt nog twee slaapkamers, waardoor er voldoende ruimte is voor een groot gezin of voor het creëren van een thuiskantoor.
Buitenruimte & tuin
De tuin is praktisch onderhoudsvrij. Met een oppervlakte van 35 m2, toegang langs achter en zowel een voor- als een achtertuin, is er volop ruimte om te genieten van buiten zijn.
Parkeren & extra voorzieningen
Qua parkeren biedt de locatie openbaar parkeren, betaald parkeren en parkeervergunningen. De woning beschikt ook over een aangebouwde, houten berging met elektriciteit, ideaal voor extra opslag of als hobbyruimte.
Bijzonderheden & extra informatie
– Bouwjaar: 1999
– Energielabel: A
– Mechanische ventilatie
– Zonnecollectoren
– Dakraam
– Glasvezelkabel
Sluit dit gezinshuis perfect aan bij jouw woonwensen? Neem dan contact op om een bezichtiging te plannen. Dit kan jouw nieuwe droomhuis zijn, vol mogelijkheden en potentie. Met een vraagprijs van € 435.000, – k.k. kan dit de nieuwe plek zijn die jij binnenkort je thuis kunt noemen. Maak vandaag nog een afspraak voor een bezichtiging en ervaar het zelf!
Informatie aanvragen