Caspar Philipsstraat 33
7425 PB Deventer
575.000 k.k.
Omschrijving
Kom deze prachtige woning bezichtigen en beleef deze goed onderhouden twee-onder-één-kapwoning, op een mooie locatie, in Deventer. Deze ruime gezinswoning in de Caspar Philipsstraat biedt je alles wat je nodig hebt. Met 5 slaapkamers, een lichte woonkamer in rustige tinten, open keuken en een aangename, besloten tuin is er meer dan genoeg ruimte voor het hele gezin om te genieten. Gebouwd in 2005, deze woning straalt een warme en uitnodigende sfeer uit. Hier zijn enkele bijzonderheden van de woning:
– Het huis met 5 slaapkamers zorgt voor voldoende privéruimte voor het hele gezin
– Het is gebouwd in 2005 en is sindsdien goed onderhouden
– Het heeft een praktische garage die te gebruiken is als multifunctionele ruimte
– Het heeft een energieklasse A, wat betekent dat het huis energiezuinig is
Locatie & Omgeving
De woning is gelegen in een rustige straat in een mooie woonwijk, met supermarkten, scholen en sportscholen op een steenworp afstand. Voor recreatieve activiteiten kun je altijd genieten van het nabijgelegen park en speeltuin.
Algemene kenmerken van de woning
Deze woning is zowel van buiten als van binnen goed onderhouden. De ruime keuken is uitgerust met alle benodigde apparatuur en heeft veel werkblad om heerlijke maaltijden te bereiden. Het huis heeft een A-energielabel en is volledig geïsoleerd, waardoor je zeker kunt zijn van comfort.
Begane grond
De begane grond bestaat uit een lichte en ruime woonkamer die naadloos overgaat in de open keuken. De woonkamer is aan de straatzijde gesitueerd en is ideaal voor gezellige familiemomenten.
Verdiepingen & indeling
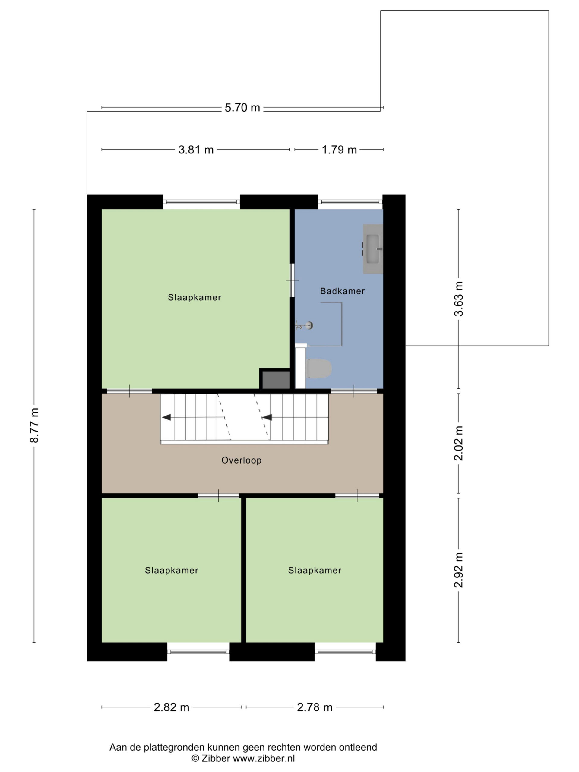
Op de eerste verdieping bevinden zich 3 ruime slaapkamers en een badkamer met toilet, douche en wastafel. De tweede verdieping biedt nog 2 extra slaapkamers voor extra ruimte of opslag.
Buitenruimte & tuin
De besloten achtertuin is met zorg aangelegd en is onderhoudsvrij. Het uitvalscherm geeft je het gevoel van een veranda.
Bijzonderheden & Extra Informatie:
– De woning heeft een HR Ketel van Intergas uit 2023
– Goed onderhouden binnen- en buitenruimte
– Glasvezelkabel voor snelle internetverbinding
– Onderhoudsvrije tuin
– 5 Slaapkamers
– Keuken en sanitair zijn netjes en praktisch.
Neem vandaag nog contact met ons op voor een bezichtiging! Laat deze kans niet aan je voorbijgaan om deze prachtige woning te bemachtigen. We kijken ernaar uit om je te verwelkomen in je nieuwe huis in de Caspar Philipsstraat, Deventer!
Informatie aanvragen